Casa Pr34
Rojkind arquitectos (Arq. Michel Rojkind) /Tecamachalco,
Estado de México

Ficha Técnica
Nombre: Pr 34
Ubicación: Tecamachalco, Estado de México
Proyecto arquitectónico: Rojkind arquitectos (Arq. Michel Rojkind)

Construcción: Factor Eficiencia, Arq. Fermín Espinosa, Arq. Ricardo Brito
Cálculo Estructural: Ing. Jorge Cadena
Instalaciones: Ing. José Ignacio Báez, Ing. Jesús Saldaña
Instalaciones: Ing. José Ignacio Báez, Ing. Jesús Saldaña
Localizada en Tecamachalco estado de México , una remodelación y una extensión a una casa de finales de los 60’s fue requerida.
La casa fue adquirida por el cliente por su distribución de espacios, fue remodelada dejándola mas limpia y amplia, después un nuevo encargo: Un departamento independiente para su hija.
Con 2 accesos totalmente independientes, una escalera de caracol es la forma de entrar a la nueva extensión.
Recordándonos un baile de ballet entre dos cuerpos en movimiento, la forma sensual que cambia de dirección saliendo de cada curva fue inspirada en la bailarina de Ballet que la habitara.
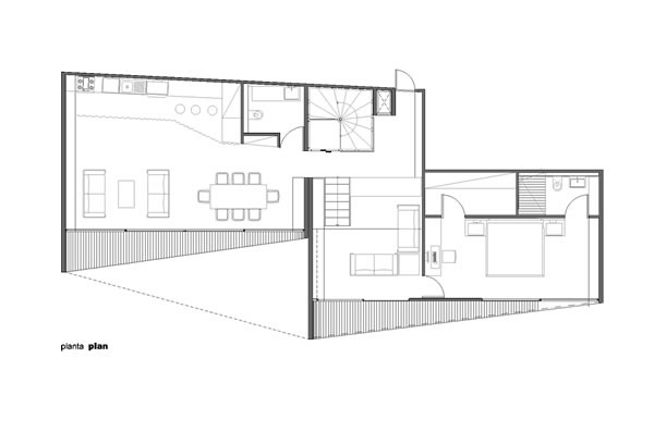
El departamento se separa en dos medios niveles, (público y privado) el primero por el cual se accede contiene sala, comedor, cocina, 1/2 baño y un montacargas que va desde la entrada, bajando medio nivel esta la sala de T.V. y después la recamara principal con baño y vestidor. Tomando en cuenta la azotea donde esta situada este nuevo cuerpo, esta es aprovechada como una gran terraza y utiliza los domos existentes de la casa original convirtiéndolos en bancos de acrílico luminosos.
Tomando en cuenta la extraordinaria mano de obra Mexicana, la estructura esta hecha de IPR’s de 6” rolados, la cubierta es de placa de acero de 5mm que fueron cuidadosamente hojalatedos como si se tratara de un barco o nave especial por debajo de esta placa van dos capas de 1 1/2” de lana mineral actuando como aislante acústico y térmico, finalmente el interior es cubierto con OSB (triplay de astilla gruesa) de 9mm con un acabado en resina blanca deslavada
La casa fue adquirida por el cliente por su distribución de espacios, fue remodelada dejándola mas limpia y amplia, después un nuevo encargo: Un departamento independiente para su hija.
Con 2 accesos totalmente independientes, una escalera de caracol es la forma de entrar a la nueva extensión.
Recordándonos un baile de ballet entre dos cuerpos en movimiento, la forma sensual que cambia de dirección saliendo de cada curva fue inspirada en la bailarina de Ballet que la habitara.
El departamento se separa en dos medios niveles, (público y privado) el primero por el cual se accede contiene sala, comedor, cocina, 1/2 baño y un montacargas que va desde la entrada, bajando medio nivel esta la sala de T.V. y después la recamara principal con baño y vestidor. Tomando en cuenta la azotea donde esta situada este nuevo cuerpo, esta es aprovechada como una gran terraza y utiliza los domos existentes de la casa original convirtiéndolos en bancos de acrílico luminosos.
Tomando en cuenta la extraordinaria mano de obra Mexicana, la estructura esta hecha de IPR’s de 6” rolados, la cubierta es de placa de acero de 5mm que fueron cuidadosamente hojalatedos como si se tratara de un barco o nave especial por debajo de esta placa van dos capas de 1 1/2” de lana mineral actuando como aislante acústico y térmico, finalmente el interior es cubierto con OSB (triplay de astilla gruesa) de 9mm con un acabado en resina blanca deslavada

Sem comentários:
Enviar um comentário